Если вы решили освоить искусство самостоятельного пошива одежды, то рекомендуем начать с платья. Конечно, фартуки и наволочки – это нужные вещи, но, согласитесь, немного скучные. А сшив платье, вы сразу можете удивить подруг и коллег своим мастерством, похвастаться обновкой. Для пошива, в первую очередь, нужно научиться строить основу. А потом уже можно приступать и к моделированию платья на основе базовой выкройки. Существует несколько методик построения выкроек: авторские, классические, с использованием компьютерных программ и вручную на листе бумаги. Попробуем разобраться в особенностях некоторых из них.
Метод построения базовой выкройки женского платья по Мюллеру
Система кроя, созданная более 125 лет назад немецким портным Михаэлем Мюллером, учитывает индивидуальные особенности фигуры человека, позволяет выполнить точные построения выкроек одежды. Методика не самая простая, но очень точная. По методу Мюллера тело делится на сегменты, особенности фигуры учитываются в пропорциональном расчёте отклонениями от стандарта.
Рассмотрим в качестве примера как выполнить основную выкройку прямого платья.
При построении будем учитывать прибавки (= П) на свободное облегание для размеров:
- высота проймы сзади – 2-3 см;
- ширина спины – 1,5-2,0 см;
- ширина проймы – 2,5-3,5 см;
- ширина груди – 1,5-2,0 см.
Для построения основы женского платья нам нужно снять мерки (мы приводим свои данные, вы можете выполнить построение по собственным меркам):
- окружность груди (= ОГ) – 85 см;
- окружность талии (= ОТ) – 62 см;
- окружность бёдер (= ОБ) – 95 см;
- длина спинки до талии (= ДТС) – 44 см;
- длина изделия (= ДИ) – 100 см;
- высота груди 1 (= ВГ 1) – 34 см;
- длина до талии спереди 1 (= ДТП 1) – 56 см.
Выполним предварительные расчёты для моделей с ОГ больше 80 см:
- высота проймы сзади (= ВПр З)** = ОГ : 10 + 10,5 см = 19 см; ВПр З + П = 19 см + 2(3) см = 19 см + 2 см = 21 см;
- высота бёдер (= ВБ) = ВПр З + ДСТ = 19 см + 44 см = 63 см;
- ширина шеи сзади (= Шш З) = ОГ : 20 + 2 см = 85 : 20 + 2 см = 6,3 см;
- высота груди 2 (= ВГ 2) = ВГ 1 – Шш 3 = 34 см – 6,3 см = 27,7 см;
- длина переда до талии 2 (= ДТП 2) = ДТП 1 – Шш 3 = 56 см – 6,3 см = 49,7 см;
- ширина спины (= ШС)** = ОГ : 8 + 5,5 см = 85 : 8 + 5,5 см = 16, 125 см; Шс + П = 16,125 см + 1,5(2,0) см = 18 см;
- ширина проймы (= ШПр)** = ОГ : 8 – 1,5 см = 85 :8 – 1,5 см = 9,125 см; ШПр + П = 9,125 см + 2,5(3,5) см = 12 см;
- ширина груди (= ШГ)** = ОГ : 4 – 4 см = 85 : 4 – 4 см = 17,25 см; ШГ + П = 17,25 см + 1,5(2,0) см = 19 см.
Величины, обозначенные **, при выполнении чертежа берём с прибавками на свободное облегание (П).
Важное замечание
Для правильно построенного чертежа сумма ((ВПр 3 + П) + (ШС + П) + (ШПр + П) + (ШГ + П)) должна равняться (ОГ : 2 + П) = (ОГ : 2 + 5,0(7,5) см).
Далее разберёмся, как построить выкройки.
Нам потребуется лист кальки с шириной не менее чем (ОГ : 2 + 0,3) м и длиной не менее чем (ДИ + 15 см).
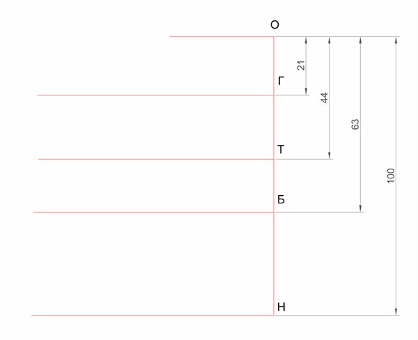
От правого верхнего угла отступаем вниз 10 см, затем влево 5 см, отмечаем точку (∙) О. Проводим прямую вниз. По ней откладываем ОГ = ВПр З + П = 21 см; ОТ = ДТС = 44 см; ОБ = ВБ = 63 см; ОН = ДИ = 1000 см.
Через данные (∙) проводим горизонтальные прямые: через (∙) О – линию верха, через (∙) Г – линию груди, через (∙) Т – линию талии, через (∙) Б – линию бёдер, через (∙) Н – линию низа.
От (∙) Б в левую сторону откладываем 2 см, ставим (∙) Б1. Из (∙) О через (∙) Б1 чертим прямую до пересечения с нижней линией. Обозначаем (∙) пересечения этой прямой с горизонтальными линиями, как показано на чертеже. Мы построили среднюю линию спинки.
Влево от (∙) Г1 откладываем Г1Г2 = ШС + П = 18 см. Далее последовательно отмеряем Г2Г3 = 2/3 (ШПр + П) = 8 см; Г3Г4 = 10 см + 13 см; Г4Г5 = 1/3 (ШПр + П) = 4 см; Г5Г6 = ШГ + П = 19 см.
Контролируем Г6Г4 + Г3Г1 = (ОГ : 2 + П) = 49 см.
Через отмеченные (∙) проводим вертикали – см. чертёж. Линия, проходящая через (∙) Г6 будет средней линией переда.
На пересечении вертикали через (∙) Г2 и горизонтали через (∙) О отмечаем (∙) О1.
От (∙) О в левую сторону откладываем ОО2 = Шш 3 = 6,3 см. В случае большого ОГ величину ОО2 = Шш 3- 0,5 см. Из (∙) О2 поднимаемся вверх на 2 см, это будет (∙) О3. Рисует лекальную линию выката.
Из (∙) О1 отмеряем вниз О1О4 = 1,0(1,5) см. Из (∙) О3 через М О4 проводим прямую. По ней влево отмеряем О4О5 = 1,5(2,0) см (для маленьких размеров), 1,0(1,5) см (для средних размеров), 0(1) см (для больших размеров).
В середине отрезка Г2О4 ставим (∙) П1. Через неё проводим горизонтальную прямую, откладываем влево П1П1’ = 1 см. В центре отрезка П1Г2 ставим (∙) П2. Через неё прочерчиваем горизонталь. На её пересечении с вертикалью из (∙) Г5 отмечаем (∙) П4. В левую сторону от (∙) П2 откладываем П2П3 = 1,3(1,5) см (прямо пропорционально размеру). Из (∙) О5 через П1’П3 до (∙) Г3 рисуем лекальную линию проймы так, чтобы её начало было перпендикулярно плечевой линии.
Проставляем (∙) Т1 и (∙) Т2 на линии талии. По линии груди вправо от (∙) Г6 отмеряем Г6Г7 = ОГ : 10 + 0,5 см = 9 см. Проводим вертикаль, на её пересечении с линией талии ставим (∙) Т4. От неё вверх отмеряем Т4О7 = ДТП 2 = 49,7 см. От (∙) О7 спускаемся на О7Г8 = ВГ 2 = 27,7 см.
Из (∙) Г5 поднимаемся по прямой на Г5О6 = Г2О4 – (1,0…1,5 см). При увеличении наклона плеча увеличиваем вычитаемую величину.
Из (∙)Г8 и (∙) Г5 через М О7 и М О6 делаем радиусные засечки. Величины радиусов Г8О7 и Г5О6.
Из (∙) О6 по дуговой линии отмеряем О6О8 = Ог : 20 – (0,5…1,0) = 3,25 см. Из (∙) О8 чертим дугу радиусом (О3О5 – 1 см) = 14 см. Уменьшение плечевой линии на 1см сделаем для припосаживания. На пересечении дуг ставим (∙) О9.
Далее будем строить пройму переда.
Проводим прямую от (∙) О8 до (∙) П4. В центре отрезка ставим (∙) П5. Из неё влево по перпендикуляру откладываем 1 см, отмечаем (∙) П6. Из (∙) О8 до (∙) Г4 через (∙) П6 и (∙) П4 проводим лекальную линию. При этом вначале она должна быть перпендикулярна плечевой линии.
Из (∙) О7 проводим перпендикуляр на среднюю линию полочки, ставим (∙) О10. Из неё вправо отмеряем 6,3 см (= О10О11 = ШШ з). Для больших значений ГО ширина выката О10О11 = ШШ З – 0,5 см. Глубина выката равна 7,5 см (= О10О12 = ШШ З + 1…2 см). Чертим отрезок О10Г5. По нему откладываем О10О13 = ШШ З + 0,5…0,8 см. Соединяем (∙) О12, (∙) О13, (∙) О11 лекальной линией.
Из (∙) О9 строим отрезок О9О14 = О11О7 = 3 см. Соединив (∙) О14 и (∙) Г8, получаем правую границу вытачки. Из (∙) Г8 вверх отмеряем Г8О15 = Г8О14. Чертим отрезок О11О15.
Чтобы построить вытачку на спинке из (∙) О3 по плечевой линии влево откладываем О3О16 = 3…5 см. Опускаем перпендикуляр на линию лопаток, ставим (∙) Л. Если вы строите основу платья для фигуры с выпуклыми лопатками и выраженной сутулостью, то по проведённой линии нужно сделать разрез. Лекало раздвигается, формируется вытачка. В нашем случае мы этого делать не будем, так как нет необходимости.
Отметим контрольные точки для вшивания рукавов. На спинке Кс = П3. На переде от (∙) Г5 вверх отмеряем Г5 = 1⁄4 (Шпр + П) = 2 см.
Для построения боковых линий откладываем по линии талии спинки и переда соответственно Т2Т5 = 1…2 см и Т3Т6 = 0,5…1 см. Проводим боковые линии. На их пересечении с линией бёдер отмечаем (∙) Б2 и (∙) Б3. Пересечение линии бёдер со средней линией переда отмечаем (∙) Б4.
Контролируем, чтобы (Б4Б3 + Б2Б1) было больше (1/2 ОБ + 3 см). Если это не так – увеличиваем расширение деталей по линиям боков.
Из (∙) Н1 перпендикулярно средней линии спинки чертим прямую. Её пересечение с боковой линией обозначаем (∙) Н2. Из неё чертим горизонтальную прямую до пересечения с линией бока переда, ставим (∙) Н3. Проводим плавную линию низа платья.
В завершение нам нужно учесть смещение плечевой линии, чтобы получилась идеальная выкройка. Для переда плечевую линию опускаем на 1 см, для спинки – поднимаем на эту же величину.
Построение выкройки основы платья по системе Мюллера закончено.
Вытачки
Расчет вытачек = (отрезок Т Т3 – (Ст + Пт) )/ 4.
Полученную разницу распределяю между деталями спинки и полочки в талиевые и боковые вытачки.
Центр талиевой вытачки на спинке проходит посередине отрезка Г Г2, спуск от линии груди Г Г3 на 4 см. вниз, спуск от линии талии Т Т1 на 10 см. вниз
Цент вытачки по полочке проходит по центру груди Г6 Т6, спуск от линии груди Г Г3 на 4 см. вниз, спуск от линии талии Т Т1 на 12 см. вниз.
Для того чтобы построить боковые вытачки по линии бедер нужно посчитать разницу по формуле: отрезок ББ3 — (Сб + Пб). Полученное значение (оно может получится как положительным так и отрицательным, это зависит от типа фигуры) делим пополам.
И отступаем при положительном значении по линии бедер спинки в право, а по полочке влево. При отрицательном значении наоборот. На рисунке ниже боковые срезы перекрещиваются, значит я получила положительную разницу.
При нулевом значении — боковые вытачки встречаются в одной точке.
При отрицательном значении — боковые вытачки находятся в отдалении друг от друга.
Крой по системе 10 мерок
Выкройки, выполненные по методике, составленной Ириной Паукште, получаются очень точными, получившиеся изделия идеально сидят на фигуре.
Система кроя Паукште очень популярна среди начинающих и профессиональных закройщиков уже многие годы.
Этот простой способ построения выкройки имеет особенности:
- достаточно всего десяти мерок. При этом особую важность приобретает точность замеров. Инструкции, как правильно снять основные мерки можно посмотреть в видео с Ириной Паукште;
- конструирование основной выкройки не требует сложных вычислений, его можно сделать достаточно быстро;
- система кроя Паукште — идеальный выбор для построения выкройки платья с рукавом, поскольку сочленение проймы получается очень точное. При этом выкройка рукава вычерчивается прямо в пройме;
- нагрудная вытачка вычисляется по остаточному методу, то есть вычерчивание остальных деталей автоматически выводит на нужную ширину вытачки;
- лёгкость моделирования – выкройки Паукште можно легко изменить для другой формы рукава или силуэта женского платья;
- методика учитывает оптимальную прибавку на свободное облегание – для эластичных тканей и при шитье корсетов, а также для 44-го и менее размеров прибавка равна 2 см. Для всех остальных случаев она должна быть не менее 3 см.
В интернете можно найти серию уроков Ирины Паукште по построению базовой сетки, лекал спинки и полочки, расчётов к пройме.
Как проверить базовую основу
Первую примерку лучше всего осуществлять после того, как будет готов лиф и отдельно юбка. До их сшития вместе, лучше удостовериться в том, что изделие не будет маленьким по длине, не будет сжимать слишком сильно талию и убедиться в подобных мелочах. Кроме того, после примерки появляется четкость в видении готовой вещи.
Возможно дизайнер, сделав первую примерку, захочет внести кардинальные изменения в конструкцию полотна или сделать интересные декоративные детали, использовать какой-то другой шов для скрепления деталей.
Обратите внимание! Первая примерка необходима и в том случае, что при технических ошибках в расчетах, еще можно было что-то исправить, прежде чем изделие будет безнадежно испорчено.
Проверка базовой париван выкройки как необходимость при создании изделия
Готовые выкройки платья приталенного силуэта
Для начинающих мы предлагаем готовые выкройки платьев.
Вам нужно снять мерки и сравнить их с приведёнными ниже (в скобках приведены российские размеры):
- 36 размер (ОГ – ОТ – ОБ): 82 – 66 – 88 см (= платья 44 размера);
- 38 размер (ОГ – ОТ – ОБ): 86 – 70 – 92 см (= платья 46 размера);
- 40 размер (ОГ – ОТ – ОБ): 90 – 74 – 96 см (= платья 48 размера);
- 42 размер (ОГ – ОТ – ОБ): 94 – 78 – 100 см (= платья 50 размера);
- 44 размер (ОГ – ОТ – ОБ): 98 – 82 – 104 см (= платья 52 размера);
- 48 размер (ОГ – ОТ – ОБ): 106 – 90 – 112 см (= платья 54 размера);
- 50 размер (ОГ – ОТ – ОБ): 110 – 94 – 116 см (= платья 58 размера);
- 52 размер (ОГ – ОТ – ОБ): 114 – 98 – 120 см (= платья 60 размера);
- 54 размер (ОГ – ОТ – ОБ): 118 – 102 – 124 см (= платья 64 размера);
- 56 размер (ОГ – ОТ – ОБ): 122– 106 – 128 см (= платья 68 размера).
В завершение нужно отметить, что на основе базовой выкройки, построенной по любой из методик, можно выполнить моделирование платьев самых разных фасонов.
Для модели из трикотажа
Для зимы можно выбрать модельки из шерсти и комбинированной пряжи. Сезон осень-зима — это большое количество простых моделей, которые легко можно выдать за домашнее одеяние.
29:1415 29:1420
30:1926 30:4
31:510 31:515
Платье с запахом и открытыми плечами
Выкройки платья проработаны на несколько размеров. Мерки для каждого приведены выше.
Летнее платье с откр без выкройки
